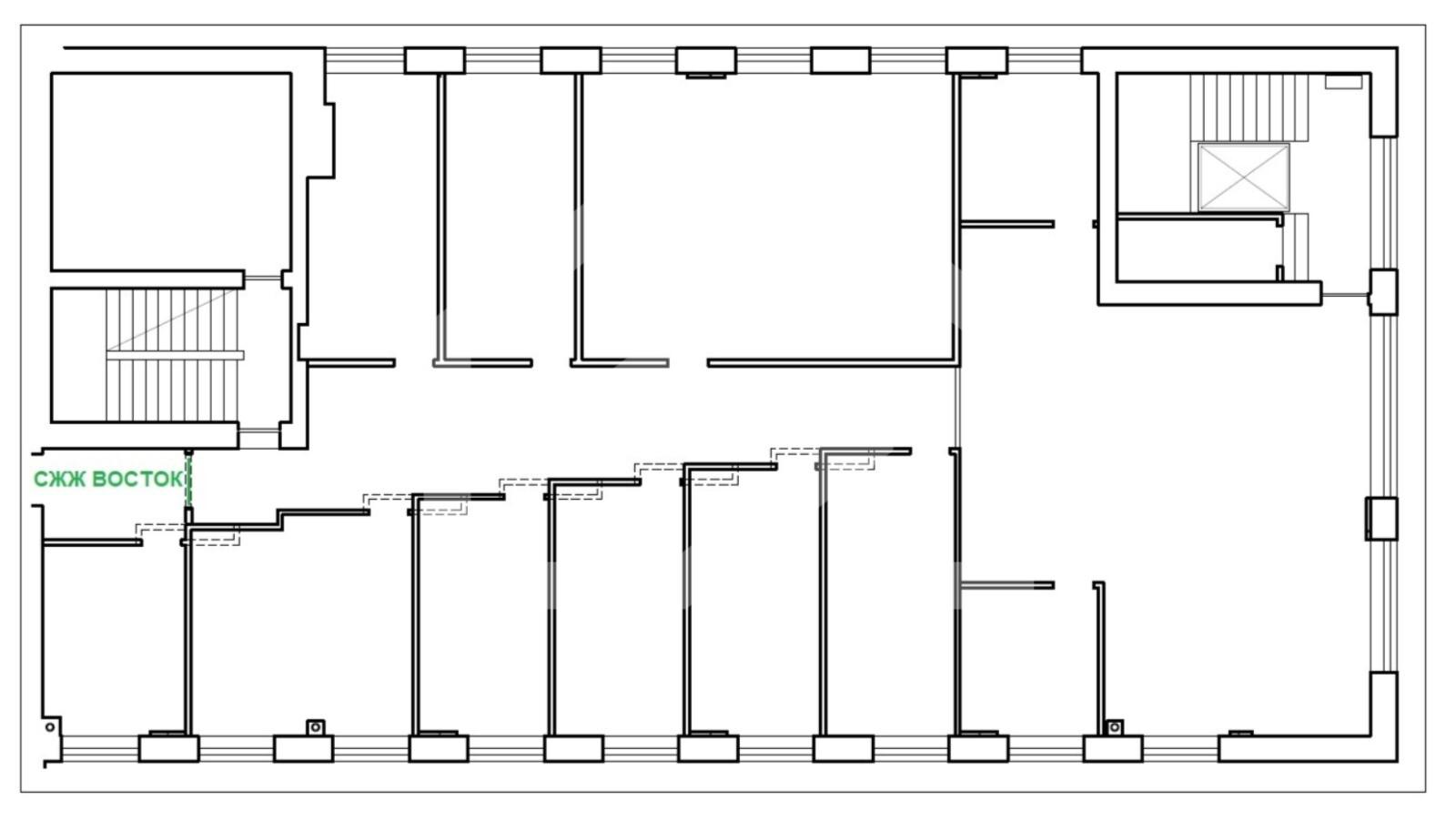
Аренда офиса на улице Загородное шоссе, 508 м2
Аренда в месяц:
1 058 333 ₽
Цена м2/год:
24 996 ₽
г Москва, Загородное шоссе, д 1
Офисное помещение в БЦ "Шаболовка 31" в Донском районе. Первая линия. 4 минуты пешком от ст. метро "Шаболовская". Густонаселенный жилой массив. Сформированный бизнес-кластер. Высокий пешеходный и автомобильный трафик. Удобный заезд и беспрепятственный доступ к зданию с основных магистралей ЦАО и ЮАО г. Москвы. Развитая инфраструктура, на территории БЦ располагается столовая, 2 кафе, аптека, нотариус. 4 этаж корпуса Б. Отдельный вход. Зальная планировка. Выполнен качественный ремонт, пол - линолеум, стены - покраска. Общая приточно-вытяжная вентиляция, кондиционирование. Круглосуточная охрана с видеонаблюдением по периметру здания. Наземная парковка на охраняемой огороженной территории.
Технические характеристики:
Общая площадь: 353.6 м².
Энергоснабжение мощностью не менее 1 кВт 10 м² площади.

