Аренда офиса на улице Береговой проезд, 200 м2
Аренда в месяц:
1 684 800 ₽
Цена м2/год:
101 088 ₽
г Москва, Береговой проезд, д 5А к 1
Бизнес-центр «Орбита-2» расположен в Северо-Западном округе Москвы, в районе Строгино. Транспортная доступность: рядом находятся станции метро «Строгино» и «Щукинская», а также остановки общественного транспорта. Комплекс имеет развитую инфраструктуру: различные предприятия питания, нотариальную контору, страховое агентство, аптеку, парикмахерскую и салоны красоты.
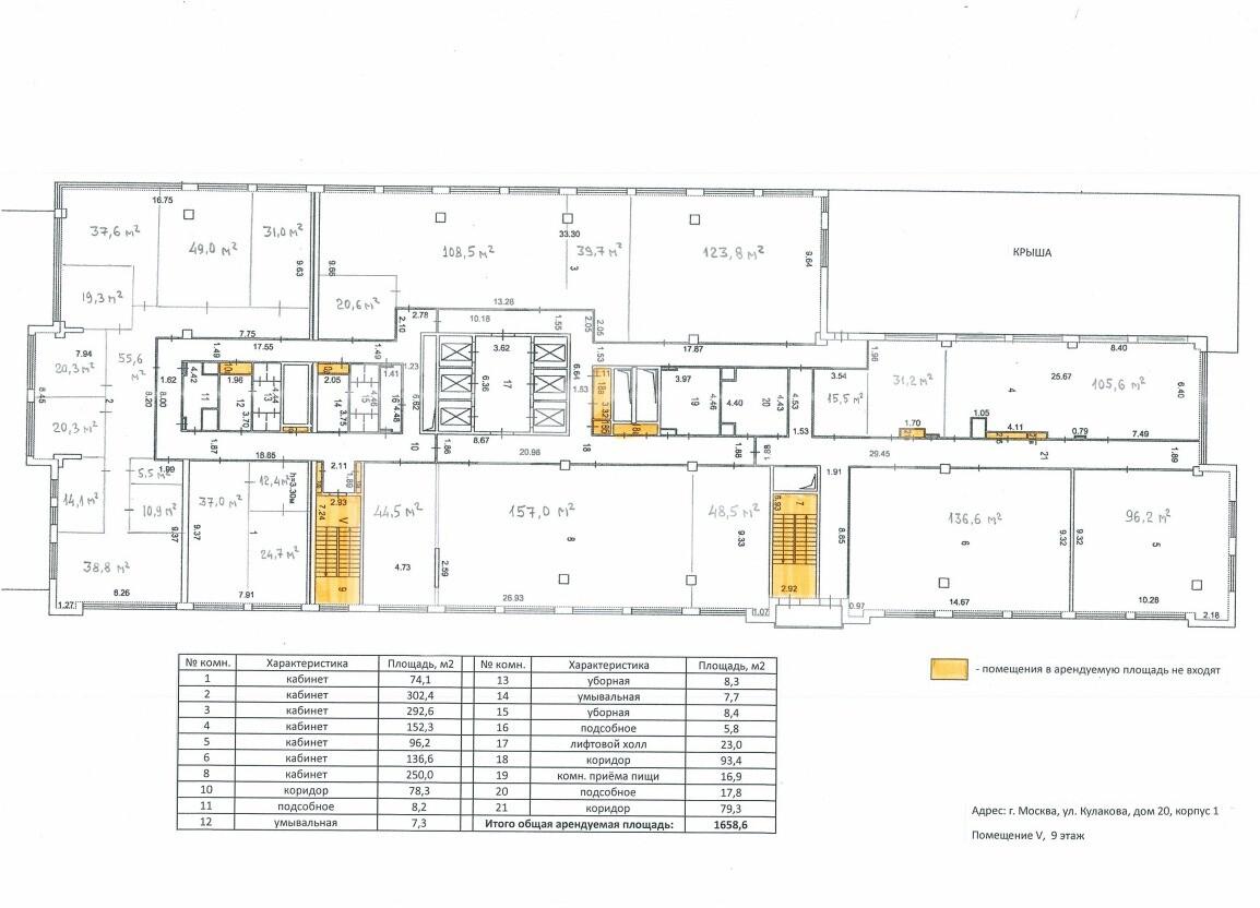
Офис расположен на 9 этаже. Общая площадь: 1 658,6 кв м. Высота потолков 2,7 м. Возможна аренда одного этажа целиком или двух-трёх (общей площадью 4 271,82 кв. м). Готовое к въезду с апреля 2025 г. Три конференц-зала в составе гостиницы, а также подземную автостоянку на 1 140 машиномест.