Продажа офиса на улице Бутлерова, 2 548,6 м2
Цена:
815 000 000 ₽
Цена м2:
319 783 ₽
г Москва, ул Бутлерова, д 17
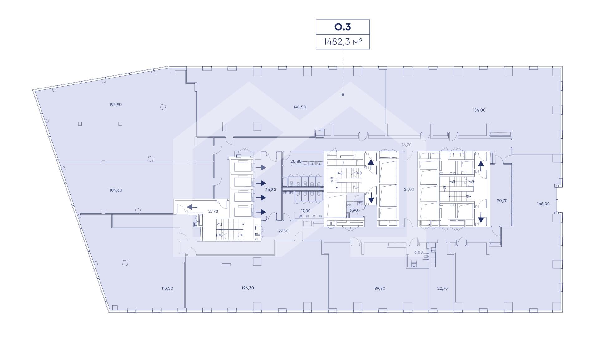
Офисное помещение в ультрасовременном многофункциональном квартале бизнес-класса "Мираполис" на первой линии проспекта Мира. 5 минут пешком от станции МЦК "Ростокино". 150 м до СВХ, 3.3 км до Ярославского шоссе, 3.8 км до Медведковского шоссе, 5.9 км до Белокаменного шоссе. Рядом ТЦ "Европолис". В "Мираполис" создана собственная инфраструктура для резидентов: кафе и рестораны, офисы и коворкинги, торговый центр и супермаркеты, фитнес-клуб, бассейн, SPA, фудкорт. Каждая из четырех башен оснащена функциональным, просторным лобби с авторской отделкой и панорамным остеклением для отдыха, общения и встречи гостей. Помещения оснащены современными инженерными системами. 5 этаж 35-этажного здания. Открытая планировка. Состояние shell&core. Мокрые точки. Высота потолков: 3.3 м. Электрическая мощность: 296 кВт. Панорамное остекление. Под открытым небом расположен Lounge-rooftop. Двухуровневый подземный паркинг на 593 машиноместа. Рядом остановка общественного транспорта.