Аренда торговой площади на улице Ленинградский проспект, 104 м2
Аренда в месяц:
750 000 ₽
Цена м2/год:
86 532 ₽
г Москва, Ленинградский пр-кт, д 29 к 1
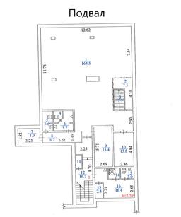
Помещение свободного назначения формата Street Retail в СВАО. Первая линия. 7 минут пешком от станции метро Марьина роща. Плотный жилой массив. Сложившееся торговое окружение. Интенсивный пешеходный и автомобильный трафик. Подвал встроенно-пристроенной части 9-этажного жилого дома. Отдельный вход с фасада. Смешанная планировка. Место для вывески. Зона погрузки/разгрузки. Парковка на улице вдоль фасада. Электрическая мощность: 48 кВт. Высота потолков: 2.59 м.