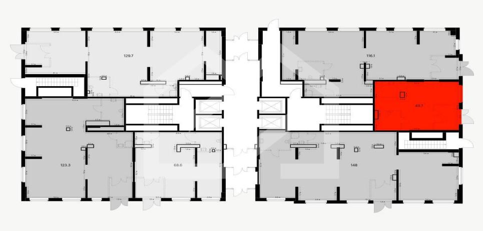
Продажа торговой площади на улице Лодочная, 50,4 м2
Цена:
28 440 720 ₽
Цена м2:
564 300 ₽
г Москва, ул Лодочная, д 27 к 2
Помещение свободного назначения формата Street Retail в ЖК "Ярославский квартал", Корпус: 1.3. ЖК состоит из 6 корпусов переменной этажности (от 24 до 25 этажей), рассчитанных на 1 953 квартир. 6 минут на автомобиле от ж/д станции "Мытищи". 350 м до Ярославского шоссе, 4.3 км до Волковского шоссе, 5 км до МКАД, 5.4 км до Пироговского шоссе. Плотный жилой массив. Сложившееся торговое окружение. Соседи "ВкусВилл" и аптека "Ригла". Высокий автомобильный и пешеходный трафик. 1 этаж 25-этажного жилого дома. Отдельный вход с фасада. Открытая планировка. Электрическая мощность: 10 кВт. Высота потолков: 4.5 м. Витринное остекление. Возможность размещения вывески. Наземная парковка. Ввод объекта в эксплуатацию: IV квартал 2025 года.

