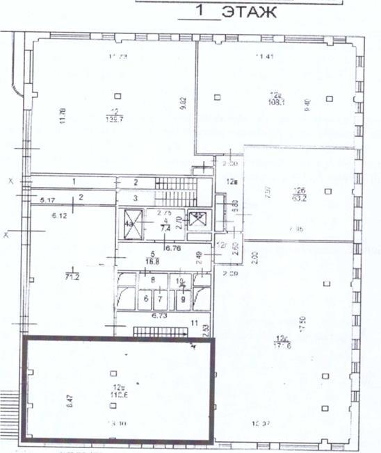
Аренда офиса на улице Загородное шоссе, 508 м2
Аренда в месяц:
1 058 333 ₽
Цена м2/год:
24 996 ₽
г Москва, Загородное шоссе, д 1
Бизнес-центр класса «А» расположен в историческом центре города неподалеку от Китайгородской крепостной стены в Басманном районе ЦАО. Всего в 5 минутах от метро Китай-город, с развитой инфраструктурой района. Рядом проходят бульвары Покровский и Яузский, улицы Солянка, Покровка и Маросейка. Офисы класса «А» представлены преимущественно в смешанной планировке, в помещениях выполнен дизайнерский ремонт, на окнах – жалюзи. Помещения готовы к въезду, отделаны высококачественными и долговечными материалами. Перепланировка допускается. Офисное помещение находится на 1 этаже, 123 кв. м. Инженерия: Система центральной приточно-вытяжной вентиляции и кондиционирования , оптико-волоконные телекоммуникации, система спринклерного пожаротушения, системы видеонаблюдения , современные системы автоматизации, современные системы безопасности. Готово к въезду, опционально с мебелью.

