Продажа торговой площади на улице Лодочная, 50,4 м2
Цена:
28 440 720 ₽
Цена м2:
564 300 ₽
г Москва, ул Лодочная, д 27 к 2
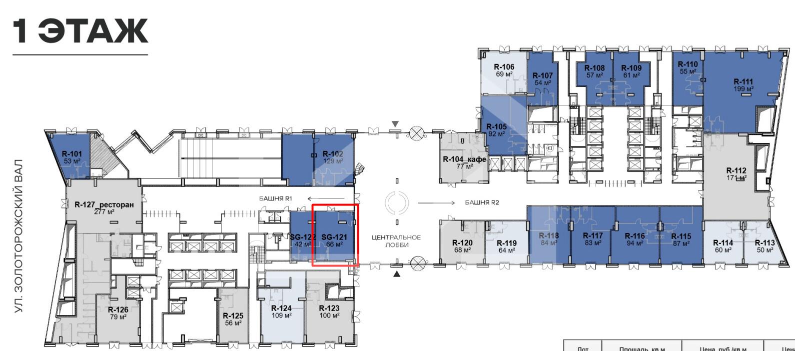
Помещение свободного назначения в бизнес-центре класса А "Stone Римская" на первой линии ул. Золоторожский Вал. 3 минуты пешком от станций метро "Площадь Ильича", "Римская" и остановок МЦД-2 и МЦД-4, входящих в ТПУ "Серп и Молот". 1.5 км до шоссе Энтузиастов, 1.7 км до ТТК, 4 км до Садового кольца. Плотный жилой массив. Сложившееся торговое окружение. Высокий автомобильный и пешеходный трафик. 1 этаж 18-этажного здания. Отдельный вход через центральное лобби. Открытая планировка. Электрическая мощность: 13 кВт. Высота потолков: 4.5 м. Витринное остекление. Возможность размещения вывески. Подземная парковка на 290 машиномест. Рядом остановка общественного транспорта.

