Аренда склада в г. Видное, 4 000 м2
Аренда в месяц:
5 824 000 ₽
Цена м2/год:
17 472 ₽
Московская обл, г Видное, пгт Горки Ленинские, промзона Технопарк, ул Западная, зд 3
Отдельно стоящее складское здание класса "А", общей площадью 8 576 кв. м. в г. Балашиха.
Преимущества:
Удобный выезд на федеральную трассу М7 и Щёлковское шоссе, 9,5 км от МКАД.
Напротив крупный жилой массив с развитой инфраструктурой.
Сложившееся торгово-промышленное окружение.
12 автоматических ворот оборудованы доклевеллерами с герметизаторами проема.
Двое ворот на отметке "0".
Оборудованы подъезды для погрузки и разгрузки материалов, готовой продукции или производственного сырья.
Один пандус.
Сверхплоские полы с упрочненным антипылевым покрытием.
Спринклерная система пожаротушения.
Централизованное водоснабжение и канализация.
Просторные, комфортные бытовые и подсобные помещения.
Наличие освещения, соответствующего требованиям действующих нормативов.
Система контроля и управления доступом.
Телекоммуникация, связь: оптоволоконные коммуникации.
Огороженная территория.
Парковка.
Возможность использования автомобильного и железнодорожного транспорта.
Технические параметры:
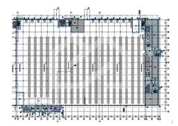
Общая площадь здания: 8 576 кв. м.
Мезонин: 576 кв. м.
Рабочая высота потолков: 12 м.
Шаг колонн: 12х24 м.
Нагрузка на пол: 7 т/кв. м.
Возможно деление на блоки по 2000 кв. м.
Стеллажи и эксплуатационные расходы включены в ставку.
Офисно-бытовые помещения: по запросу.
Доступ к полам в июне 2025 г.
Договор аренды сроком не менее 2х лет.
Так как адрес отсутствует на Яндекс. Картах, введен ближайший.
