Аренда офиса на улице Загородное шоссе, 508 м2
Аренда в месяц:
1 058 333 ₽
Цена м2/год:
24 996 ₽
г Москва, Загородное шоссе, д 1
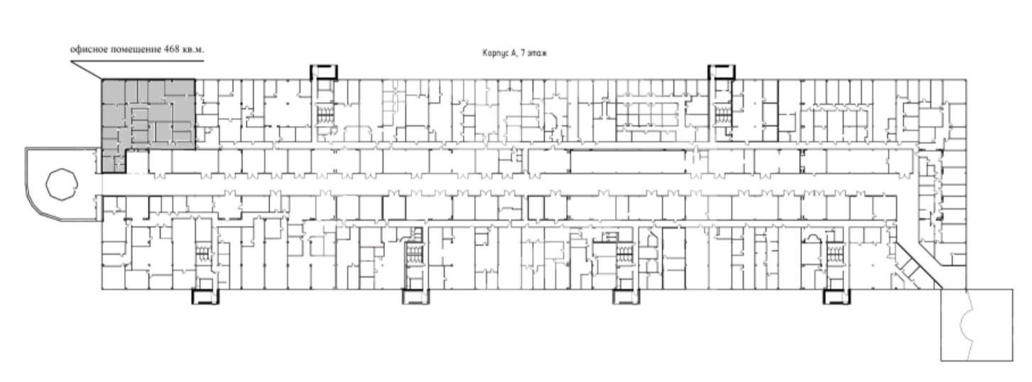
Бизнес-парк Румянцево находится пот адресу Киевское шоссе, 22-й км, д 4. Корпус А. 3 минуты пешком от станции метро "Румянцево" и 5 минут на транспорте до станции метро "Саларьево". Идеальная транспортная доступность обуславливается близостью к МКАД (500 м); метро Румянцево на территории бизнес-парка; 15 мин. от аэропорта Внуково. Офис в аренду площадью 468 кв. м. на 7 этаже в корпусе А. Удобное расположение офиса, стены под покраску, потолок Armstrong, высокие потолки 2,7 - 3,3 м. График 24/7 . Пропускная система. Охраняемая парковка для сотрудников на 7000 машиномест,. Возможность заезда транспорта в здание для стоянки или разгрузки погрузки. Возможна перепланировка арендуемого помещения. Готов к въезду

