Продажа готового бизнеса в ЖК Клубный город на реке Primavera, 56,1 м2
Цена:
60 000 000 ₽
Цена м2:
1 069 518 ₽
г Москва, Покровская наб, д 16
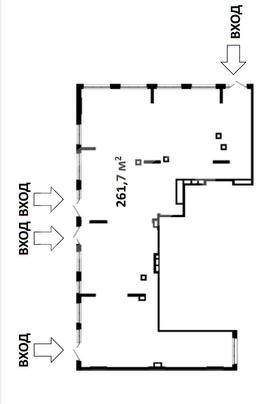
Помещение свободного назначения формата Street Retail с федеральным арендатором в ЖК «Бунинские кварталы». Корпус 9.1. ЖК состоит из 16 корпусов переменной этажности (от 7 до 22 этажей), рассчитан на 5 862 квартиры. 15 минут на автомобиле от станции метро Бунинская аллея. Центр плотного жилого массива. Интенсивный автомобильный и пешеходный трафик. 1 этаж 9-этажного жилого дома. Угловой блок. 4 входные группы. Открытая планировка. Панорамное остекление. Парковка около помещения. Электрическая мощность: 52 кВт. Высота потолков: 4 м.
Арендатор: супермаркет «Магнит», ДАБВ.
МАП: 785 100 руб.
6% от ТО, но не менее 785 100 руб.
Индексация 4%.
Ввод в эксплуатацию: 4 квартал 2025 г. Ключи: 2 квартал 2026 года.

