ID: 846369
Ссылка скопирована!

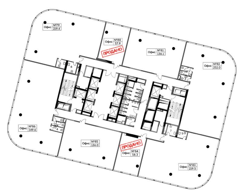
Продажа офиса на улице Ходынский бульвар, 219,5 м2

Цена :130 887 850 ₽
Цена за м2:596 300
Площадь: 219,5 м2
г Москва, Ходынский б-р, уч 4/1

Описание

Характеристики объекта

Расположение

г Москва, Ходынский б-р, уч 4/1

Похожие объекты

Не нашли, что искали?

Мы поможем в выборе!

+7

Персональные консультанты свяжутся с вами в течении 5 минут