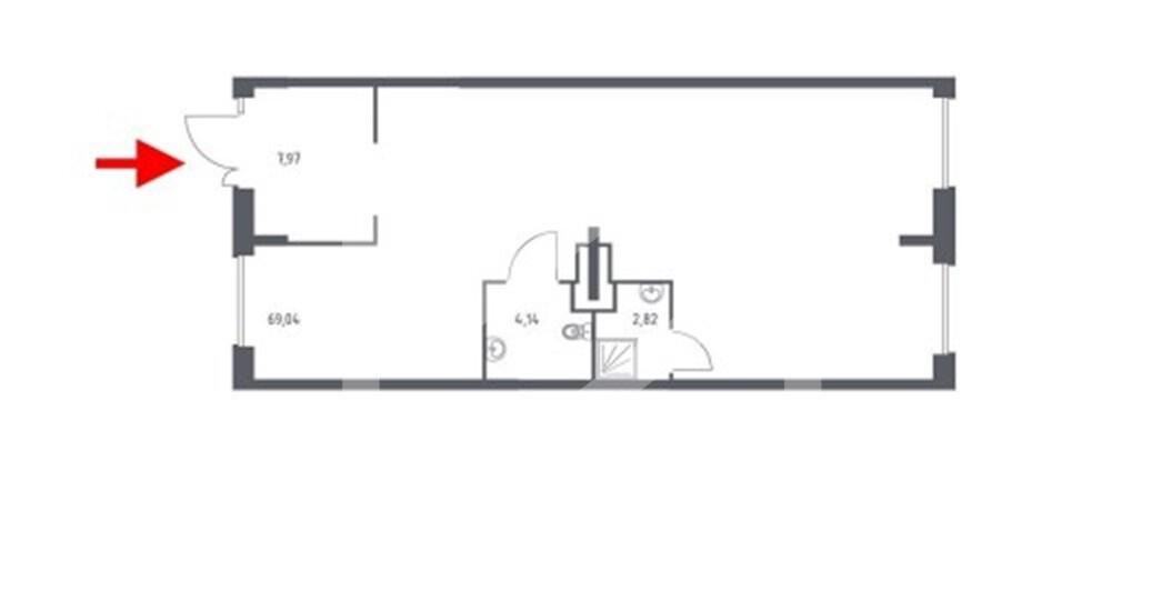
Продажа помещения свободного назначения на улице Молодогвардейская, 153 м2
Цена:
76 500 000 ₽
Цена м2:
500 000 ₽
г Москва, ул Молодогвардейская, д 4 к 1
Помещение свободного назначения формата Street Retail в ЖК "Рублевский Квартал", Корпус: 55. ЖК состоит из 9 корпусов переменной этажности (от 8 до 12 этажей), рассчитанных на 3 256 квартир. 10 минут на автомобиле от станции МЦД-1 "Одинцово". 2.2 км до Красногорского шоссе, 6.3 км до Подушкинского шоссе, 7 км до Рублёво-Успенского шоссе. Плотный жилой массив. Мало коммерческих помещений. Стабильный автомобильный и пешеходный трафик. 1 этаж 9-этажного жилого дома. Отдельный вход с фасада. Открытая планировка. Электрическая мощность: 16 кВт. Высота потолков: от 3.2 м до 6.2 м. Витринное остекление. Возможность размещения вывески. Наземная парковка. Рядом остановка общественного транспорта.

