Продажа здания на улице Бауманская, 42 139 м2
Цена:
16 500 000 000 ₽
Цена м2:
391 561 ₽
г Москва, ул Бауманская, д 11
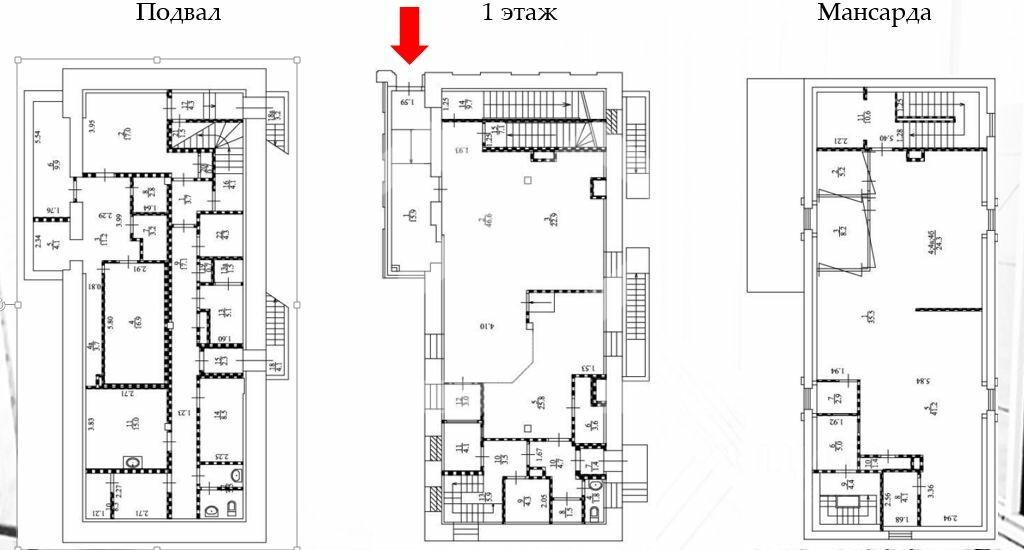
Особняк на первой линии Покровского бульвара. 10 минут пешком от станции метро Китай-город. Сложившееся торговое и деловое окружение. Подвал, 1 этаж и мансарда. 3 отдельные входные группы, одна из них с Покровского бульвара. Смешанная планировка. Ж/Б перекрытия. Парковка на улице. Ввод в эксплуатацию по завершении реконструкции: 2023 г. (есть все разрешения). Земельный участок в аренде. Электрическая мощность: 100 кВт. Высота потолков: 1 этаж - до плиты 3,35 м., до перекрытия 2,7 м; мансарда - до плиты 3 м., до перекрытия 2,7 м; подвал - до плиты 2,7 м., до перекрытия 2,3 м. Не является памятником.