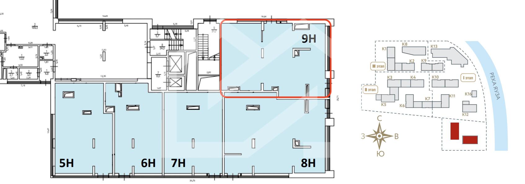
Продажа торговой площади на улице Лодочная, 50,4 м2
Цена:
28 440 720 ₽
Цена м2:
564 300 ₽
г Москва, ул Лодочная, д 27 к 2
Помещение свободного назначения в административном здании на территории ЖК "Резиденции Архитекторов". ЖК состоит из 14 корпусов переменной этажности (от 7 до 17 этажей), рассчитанных на 836 квартир. 1 км до Измайловского шоссе, 2.3 км до ТТК, 5.3 км до Щёлковского шоссе, 6.9 км до шоссе Энтузиастов. Плотный жилой массив. Сложившееся торговое окружение. Высокий автомобильный и пешеходный трафик. 1 этаж 13-этажного здания. Отдельный вход с улицы. Открытая планировка. Все коммуникации. Электрическая мощность: 23 кВт. Высота потолков: от 3 м до 3.30 м. Витринное остекление. Возможность размещения вывески. Наземная парковка. Рядом остановка общественного транспорта.

