Аренда торговой площади на улице Варшавское шоссе, 238,6 м2
Аренда в месяц:
600 000 ₽
Цена м2/год:
30 168 ₽
г Москва, Варшавское шоссе, д 2
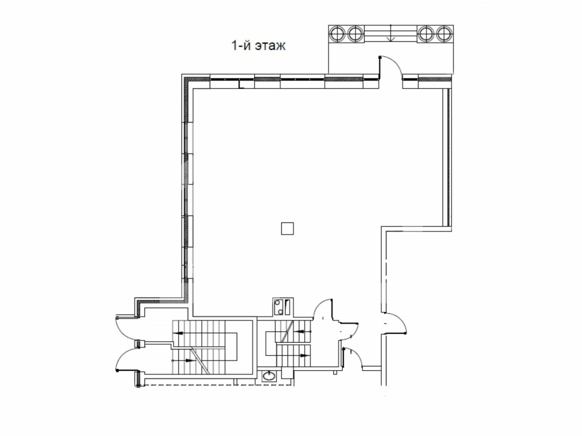
Помещение свободного назначения формата Street Retail в районе Хамовники, ЦАО. ЖК "Knightsbridge Private Park". Первая линия. Пересечение ул. Ефремова и Кооперативной. 5 минут пешком от ст. метро "Спортивная". Густонаселенный жилой массив. Удобная транспортная доступность: 140 м до выезда на Комсомольский проспект, 400 м до выезда на ТТК. 1 этаж и подвал жилого дома. 3 отдельный входа с фасада. Зона разгрузки со стороны двора. Свободная планировка. Витринное остекление. Возможность размещения вывески. Парковка на территории комплекса.
Технические характеристики:
Площадь блока: 235 кв. м
Электрическая мощность: 60 кВт.
Высота потолков: 3.47 - 3.6 м

