Аренда торговой площади на улице Ленинградский проспект, 104 м2
Аренда в месяц:
750 000 ₽
Цена м2/год:
86 532 ₽
г Москва, Ленинградский пр-кт, д 29 к 1
Аренда помещения в Премиум-квартале “JAZZ” - проект компании Sminex в Марьиной Роще на пересечении улиц 1-я Ямская и Октябрьская. Многофункциональный комплекс включает в себя 7 корпусов разной этажности от 2 до 21 этажей, 349 квартир и 134 апартамента, 29 000 кв.м. офисных помещений. МФК расположен в районе с налаженной инфраструктурой. Рядом ТРЦ “Райкин Плаза”, физкультурно-оздоровительный клуб “Марьина Роща”, театр “Сатирикон", в 150 м проходит ТТК, в 650 м находится Рижский вокзал. До ближайшего парка Фестивальный 500 м, сразу за ним – Екатерининский сад. На расстоянии 1 км – Новослободский парк и Антроповский сквер. Помещение свободного назначения на первом этаже 5-этажного делового центра. Первая линия. Две отдельные входные группы: со стороны улицы и со стороны двора. Технологическая вытяжка под общепит. Зона погрузки/разгрузки. Рядом находятся кофейня, паб и спортклуб. В радиусе 500 м находится 2 560 квартир.
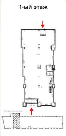
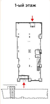
Площадь 1-го этажа 370 м2
Площадь антресоли 148 м2.