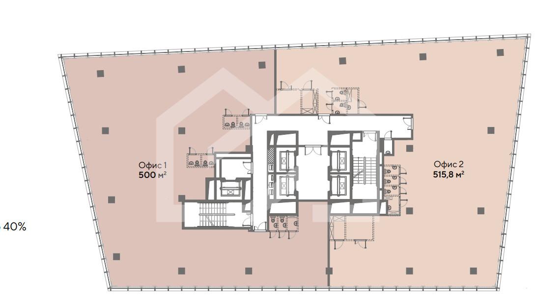
Аренда офиса на улице Загородное шоссе, 508 м2
Аренда в месяц:
1 058 333 ₽
Цена м2/год:
24 996 ₽
г Москва, Загородное шоссе, д 1
Офисное помещение в бизнес-центре класса А "GEOLOG". 8 минут пешком от станции метро Калужская. Выезд на МКАД в 5 км. На первом этаже БЦ магазины, кафе и рестораны. 12 этаж 13-этажного здания. Общий вход. Смешанная планировка. Витражное остекление. В здании центральная приточно-вытяжная система NED, централизованное кондиционирование системы "Чиллер-фанкоил" NED. Двухуровневый подземный паркинг на 88 машиномест. Высота потолков: 6 м.

