Аренда офиса на улице Загородное шоссе, 508 м2
Аренда в месяц:
1 058 333 ₽
Цена м2/год:
24 996 ₽
г Москва, Загородное шоссе, д 1
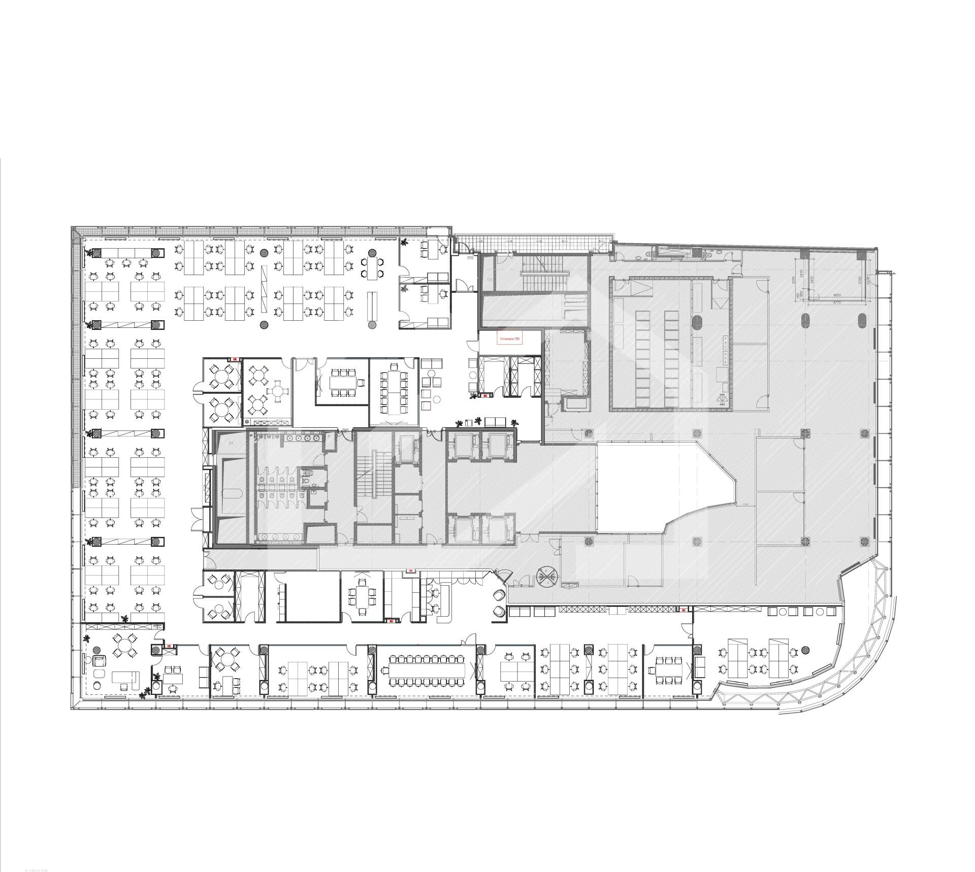
Офисное помещение в бизнес-центре "Четыре Ветра" на улице 1-я Тверская-Ямская. 5 минут пешком от станции метро Белорусская, 5 минут на автомобиле от ТТК и 10 минут на автомобиле от Кремля. Сложившееся деловое окружение. 6 этаж 10-этажного БЦ. Смешанная планировка. Офисная отделка. 130 рабочих мест, 8 кабинетов и 9 переговорных. Есть миникухня, кофе-пойнт, серверная, ВИП-кабинет. Электроснабжение: 2 независимых источника питания. Системы контроля доступа и видеонаблюдения Siemens. Климатическая система: четырехтрубные фанкойлы и независимые терморегуляторы. Дизель-генератор. Лифты Schindler. Сетевые провайдеры: Мегафон, МТС, Теле2, Билайн, Наука и Связь и другие. 224 машиноместа на трех подземных уровнях. 01.05.2025 г

