Продажа готового бизнеса в ЖК Клубный город на реке Primavera, 56,1 м2
Цена:
60 000 000 ₽
Цена м2:
1 069 518 ₽
г Москва, Покровская наб, д 16
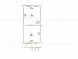
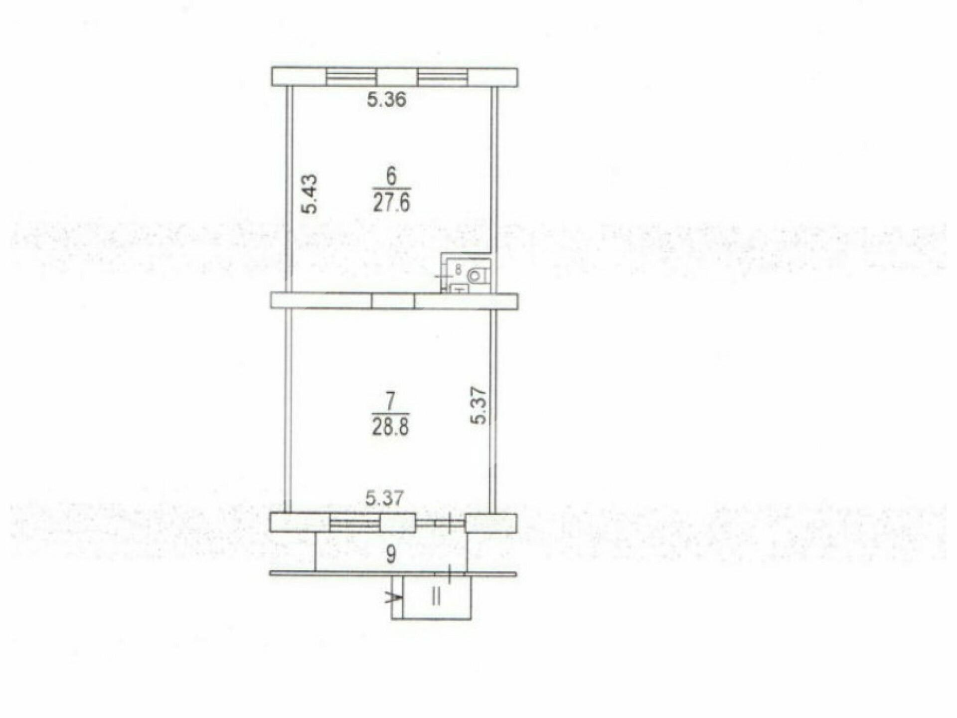
Предлагается помещение на первом этаже жилого 5-этажного дома, на востоке Москвы. Станция метро Бульвар Рокоссовского в минуте ходьбы. Удобная транспортная доступность, рядом остановки общественного транспорта, 15 минут на автомобиле до МКАД, 18 минут до ТТК. Густонаселенный район. Фасадное остекление. Электрическая мощность - 30 кВт. Помещение с арендатором. Возможность наружной рекламы. Площадь блока: 61.7 кв. м, количество входов: 1, окна: витринные, электрическая мощность: 30кВт, высота потолков: 2,7 м.
Табак МАП 270 000 рублей.

