Продажа торговой площади в ЖК Sydney City, 118,7 м2
Цена:
118 700 000 ₽
Цена м2:
1 000 000 ₽
г Москва, ул Шеногина, д 2
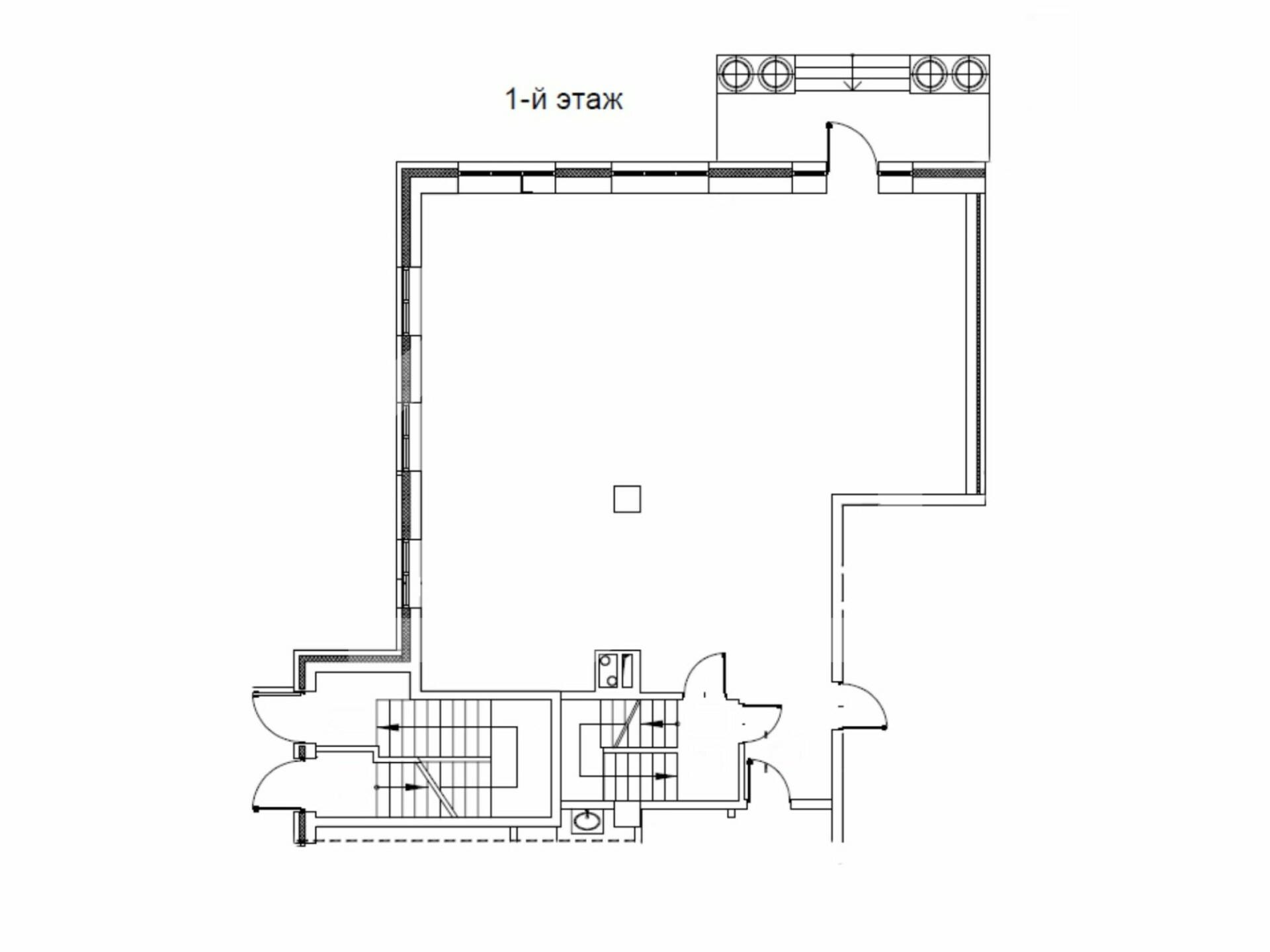
Помещение свободного назначения в ЖК "Найтсбридж Приват Парк" на первой линии ул. Ефремова. Расположено в элитном районе Хамовники. 8 минут пешком от станции метро "Спортивная". 2 км до ТТК, 2.5 км до Садового кольца. Плотный жилой массив. Развитая инфраструктура. Сложившееся торговое окружение. Высокий автомобильный и пешеходный трафик. Помещение на трех уровнях: подвал (114 кв. м), 1 этаж (121,7 кв. м.) и 2 этаж (162,1 кв. м). 3 отдельные входные группы. Открытая планировка. Подвал и 1 этаж под отделку, 2 этаж с офисным ремонтом. Витринное остекление. Место для вывески. Зона разгрузки/погрузки. Наземная парковка. Электрическая мощность: 115 квт. Высота потолков: от 3.4 м до 3.6 м.