Аренда торговой площади в г. Солнечногорск, 136,6 м2
ID: 636948
Московская обл, г Солнечногорск, деревня Голубое
Арендная плата :136 600 ₽/ в мес
Ссылка скопирована!
Арендная ставка:1 000 ₽/м2 в мес
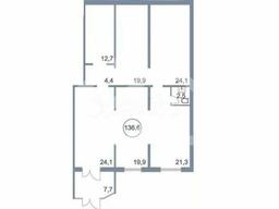
Площадь: 136,6 м2
Московская обл, г Солнечногорск, деревня Голубое
Описание
Характеристики объекта
Количество входов1
Высота потолков3
ПланировкаСмешанная
Вытяжка для общепитаНет
Зона разгрузки/погрузкиНет
Описание
ЖК: Первый Зеленоградский, Помещение в ЖК первый Зеленоградский в Солнечногорске. 1 этаж 17-этажного жилого здания. Вход - перед основным проходом в ЖК с остановок общественного транспорта на Пятницком шоссе. Справа от помещения магазин Красное&Белое, супермаркет Верный, слева - аптека Апрель.
Состояние под чистовую отделку, заведены все коммуникации. Эл. мощность 15 кВт, при необходимости можно увеличить. Есть парковка перед фасадом. Место для размещения вывески., Всего этажей: 1, Площадь блока: 136.6 кв.м., Количество входов: 1, Окна: витринные, Зона разгрузки/погрузки, Электрическая мощность: 15кВт, высота потолков: от 3