Продажа помещения свободного назначения в г. Видное, 69,9 м2
Цена:
19 000 000 ₽
Цена м2:
271 816 ₽
Московская обл, г Видное, поселок Развилка, д 52 к 1
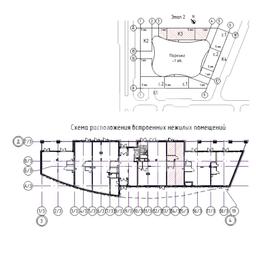
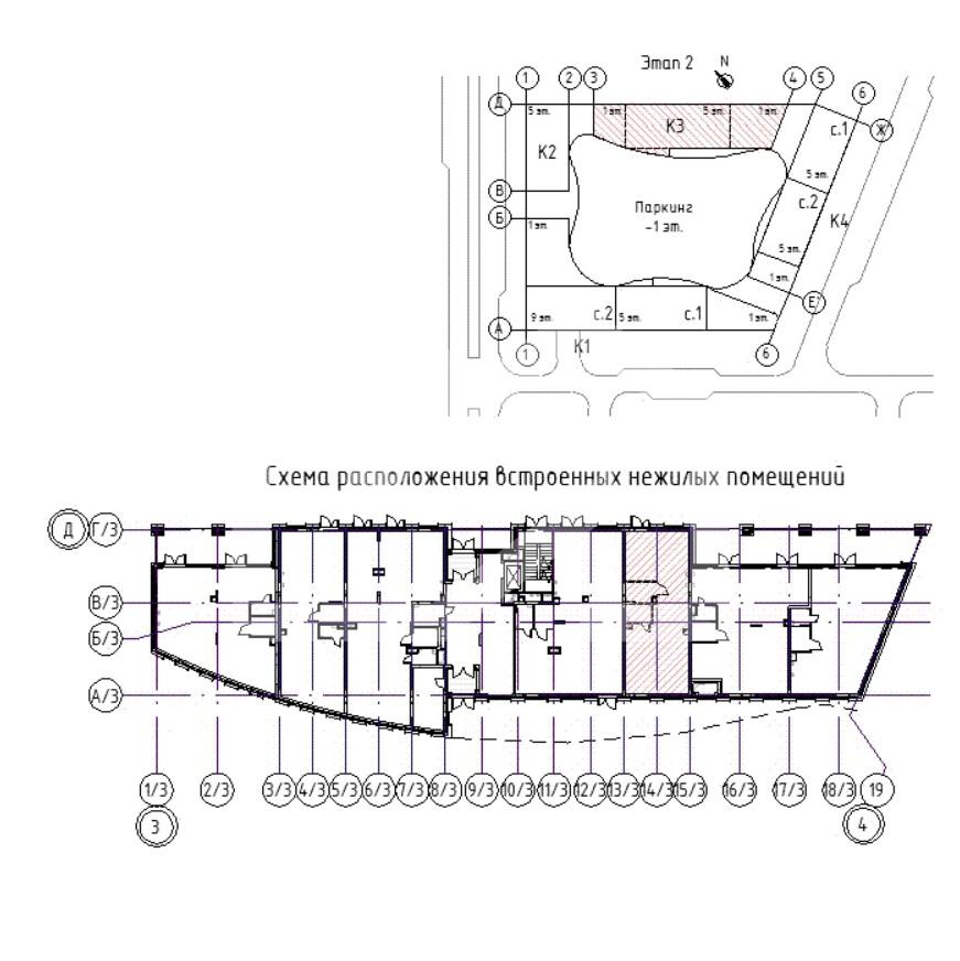
Помещение свободного назначения формата Street Retail в ЖК "Shagal". 3 очередь, 2 этап, корпус 3. Секция 1. Расположен в престижном Даниловском районе столицы. ЖК состоит из 33 корпусов переменной этажности (от 6 до 28 этажей), рассчитанных на 6 238 квартир. 5 минут на автомобиле от станции МЦК "ЗИЛ". Выезд на ТТК, Варшавское и Загородное шоссе. Плотный жилой массив. Сложившееся торговое окружение. Интенсивный автомобильный и пешеходный трафик. 1 этаж 5-этажного жилого дома. Отдельный вход с улицы. Открытая планировка. Витринное остекление. Возможность размещения вывески. Наземная парковка.

