Аренда торговой площади в г. Красногорск, 56 м2
Аренда в месяц:
290 000 ₽
Цена м2/год:
62 136 ₽
Московская обл, г Красногорск, ул Липовой Рощи, д 5 к 5
Предлагается помещение формата Street Retail на первой линии Проспекте Мира, СВАО, г. Москва. 1 этаж 10-этажного жилого дома.
Преимущества:
Шаговая доступность от ст. метро «Алексеевская» — 3 минуты пешком.
Отличная пешеходная и транспортная доступность.
Удобный подъезд с Проспекта Мира и от ТТК.
Помещение расположено в крупном сложившемся жилом районе с высокой плотностью застройки и развитой инфраструктурой.
В окружении находятся «ВДНХ», Телецентр и парк «Останкино», Деловой центр с апарт-комплексом «Парк Мира», театр танца Аллы Духовой «Todes».
Отлично подойдёт под любой вид деятельности: торговое помещение, магазин, ресторан, кафе, аптека, салон красоты, банк, офис продаж, кофейня и др.
Напротив остановка общественного транспорта и пешеходный переход.
Технические характеристики:
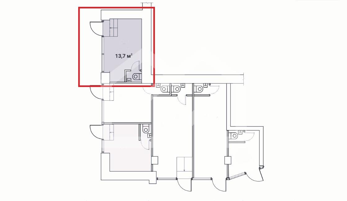
Общая площадь: 13.7 м.
Высота потолков: 3.7 м.
Перекрытия — ж/б.
Электрическая мощность: достаточная под любой вид деятельности.

