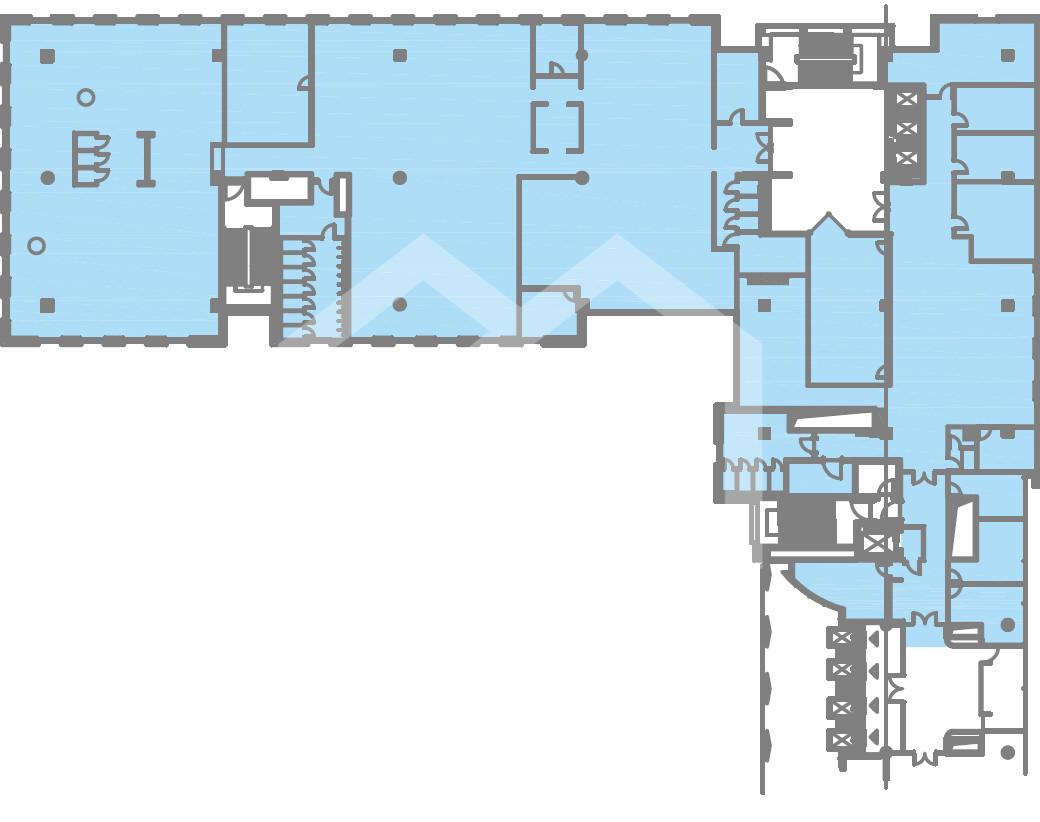
Аренда офиса на улице Нахимовский проспект, 2 084 м2
Аренда в месяц:
5 814 360 ₽
Цена м2/год:
33 480 ₽
г Москва, Нахимовский пр-кт, д 58
Офисное помещение в бизнес-центре «Капитолий Вернадского» находится в ЗАО Москвы, в районе Раменки, на проспекте Вернадского, 6, рядом с Ломоносовским, Ленинским проспектом, в 8 минутах от метро «Университет», в 330 метрах от автобусной остановки «Улица Строителей».
Помещение 1764 кв. м, смешанная планировка с офисной отделкой. Многоуровневый паркинг для 1217 автомобилей, наземный парк на 881 место. Готовое к въезду.
В ТРЦ «Капитолий Вернадского» работают продуктовый гипермаркет, магазины электроники, магазины одежды, магазин белья и купальников, магазины парфюмерии и косметики, ювелирные магазины, школа бильярда, курсы иностранных языков, салон красоты, беговой клуб, студия маникюра, кинотеатр, парк развлечений.
В кулинарной части находятся рестораны, кофейни, пиццерия, суши-бар.
Рядом находятся МГУ им. М.В. Ломоносова, Большой Московский цирк, Театр Армена Джигарханяна, Дарвиновский музей, парк им. 40-летия ВЛКСМ.

