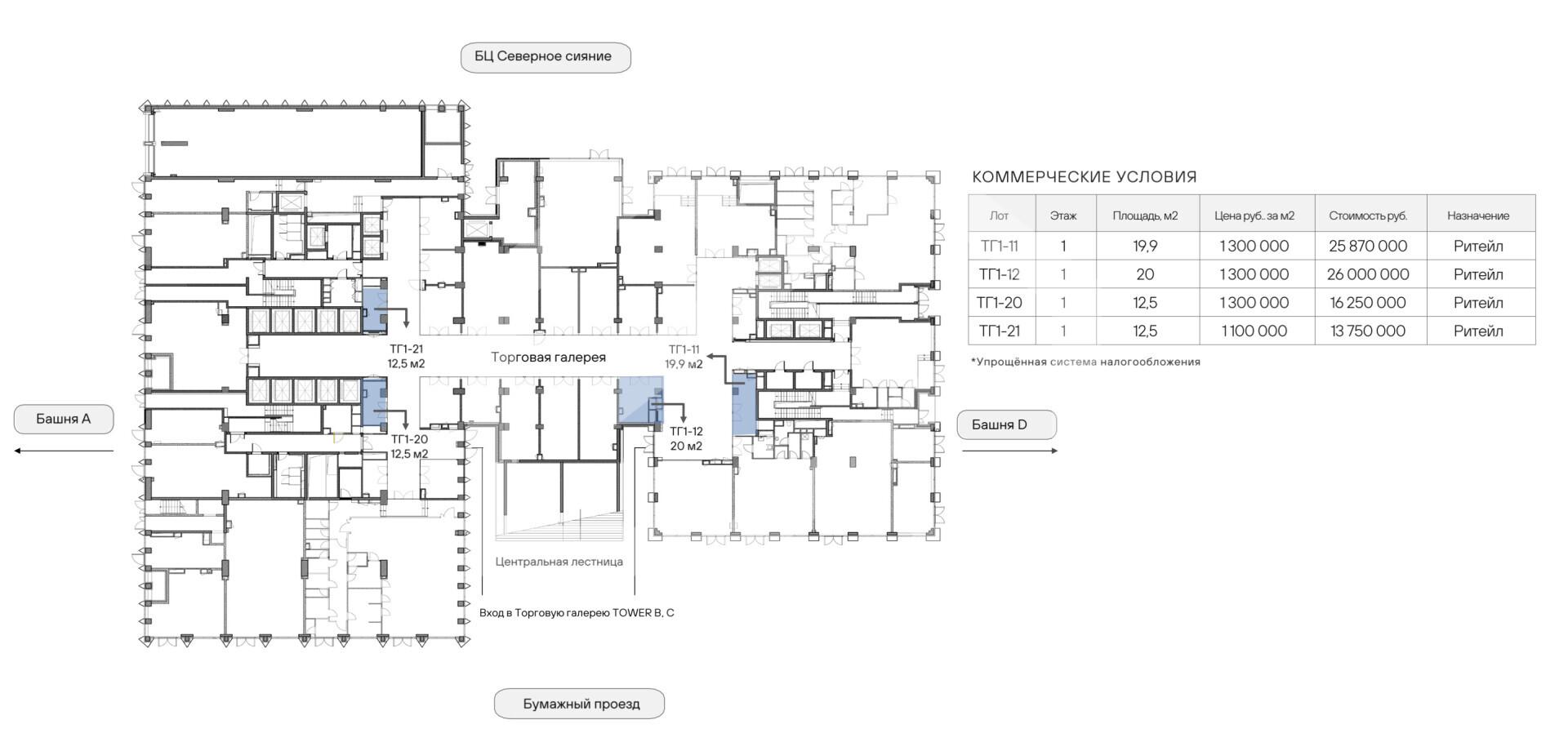
Продажа помещения свободного назначения на улице Молодогвардейская, 153 м2
Цена:
76 500 000 ₽
Цена м2:
500 000 ₽
г Москва, ул Молодогвардейская, д 4 к 1
Помещение свободного назначения под общепит в премиальном квартале "Stone Towers", корпус B в САО. Первая линия Бумажного проезда. 8 минут пешком от ст. метро "Савеловская". Квартал состоит из 4-х офисных зданий. Сложившееся торговое и деловое окружение. Развитая транспортная инфраструктура. 1-й этаж 23-этажного здания. Зальная планировка. Панорамное остекление. Произведена разводка всех центральных коммуникаций. Установлена система вентиляции воздуха, пожаротушения и кондиционирования. Мокрая точка. Возможность организации летней веранды. Паркинг на территории комплекса.

