Аренда офиса на улице Нахимовский проспект, 2 084 м2
Аренда в месяц:
5 814 360 ₽
Цена м2/год:
33 480 ₽
г Москва, Нахимовский пр-кт, д 58
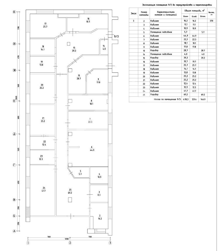
Бизнес-центр находится по адресу Москва, Марксистская улица, 3С2, расположен недалеко от метро «Марксистская», «Таганская», «Пролетарская». Плюсом станет близость транспортных магистралей, таких как Садовое Кольцо, Волгоградский проспект и других. Офис на 3 этаже, 842 кв. м. В помещении стандартная офисная отделка, кабинетная планировка. Приточно-вытяжная вентиляция. Круглосуточная охрана и видеонаблюдение. Наземная парковка.
