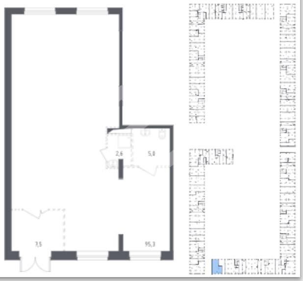
Аренда торговой площади на улице Ленинградский проспект, 104 м2
Аренда в месяц:
750 000 ₽
Цена м2/год:
86 532 ₽
г Москва, Ленинградский пр-кт, д 29 к 1
Помещение свободного назначения формата Street Retail в ЖК "Мытищи Парк", Корпус: 4. ЖК состоит из 7-ми 17-этажных корпусов, рассчитанных на 9 048 квартир. 8 минут на автомобиле от ж/д станции "Челюскинская", 20 минут на автомобиле от станции метро "Медведково". 2.4 км до Пироговского шоссе, 4 км до Волковского шоссе, 7 км до Ярославского шоссе. Плотный жилой массив. Сложившееся торговое окружение. Стабильный автомобильный и пешеходный трафик. 1 этаж 17-этажного жилого дома. Отдельный вход с улицы. Электрическая мощность: 12 кВт. Высота потолков: 3.2 м. Открытая планировка. Вытяжка под общепит. Витринное остекление. Возможность размещения вывески. Наземная парковка. Ввод объекта в эксплуатацию: II квартал 2025 года.